3925 | Scherpenzeel: Industrielaan 15B

Gebouw Industrielaan 15 B. Op representatieve en groene locatie aan de rand van Bedrijventerrein het Zwarte Land. Een goede bedrijfsruimte, werkplaats of kantoor: veilig, duurzaam en gezond. Een betaalbare, duurzame en comfortabele ruimte: een eigenzinnig bedrijfsgebouw met een functie die ertoe doet. In dit zelfstandige gebouw is het goed werken. Onder architectuur gebouwd met een eigen identiteit, zichtbaar vanaf de Industrielaan in een parkachtige/groene omgeving. Het pand heeft twee verdiepingen: begane grond als werkplaats; eerste verdieping als kantoor en als magazijn.
De bereikbaarheid is uitstekend direct nabij de N 224 en op korte afstand gelegen van aansluitingen op A-1 – A 12 -A28 en A 30
Voorzieningen
- Verwarming
- Verlichting
- Internet en elektra
- Kantoren met zonwering
- Parkeergelegenheid
- Kantoren op de eerste verdieping (geschikt voor circa 10 personen).
- Galerij op de verdieping langs de kantoren met vide.
- Kantine met keuken (o.a. koelkast, vaatwasmachine e.d.).
- Alarminstallatie met camera’s, camerabewaking
- diverse toiletten.
- Afwerking o.a. siergrindvloeren, systeemplafonds en verplaatsbare wanden.
- Gevels met stalen geprofileerde sandwichpanelen; aluminium kozijnen met HR++ beglazing; plat dak met EPDM (deels sedumdak).
Oppervlakte en indeling (BVO)
Totale oppervlakte: 564 m² (Bruto Vloer Oppervlakte),
- 205 m² kantoren: entree en toiletten 19 m²; kantoren op verdieping 186 m².
- 356 m² werkruimten: werkplaats 289 m²; magazijn op verdieping 67 m².
Energielabel: A (EPN-berekening aanwezig).
Inlichtingen: telefoon 033 277 2020 | e-mail: info@3925.nl
3925 | Scherpenzeel: Industrielaan 15C

Gebouw Industrielaan 15C. Op representatieve en groene locatie aan de rand van bedrijventerrein het Zwarte Land. In dit zelfstandige bedrijfsgebouw is het bijzonder goed werken. Aantoonbaar duurzaam en onder architectuur gebouwd met een gedegen eigen identiteit. Zelfstandige duurzame kantoorruimte met royale kantoren en magazijn/opslag op de verdieping, entree en toiletgroep, en een galerij op de verdieping langs de kantoren met vide. Ruime werkplaats. Moderne en duurzame bedrijfsruimte. Gevels bestaande uit geïsoleerde beton en sandwich panelen. De kozijnen zijn van aluminium voorzien van triple beglazing, elektrische bedienbare zonwering en het pand heeft een geïsoleerd dak met lichtstraten en sedum afwerking. De betonnen (geïsoleerde) vloeren zijn voorzien van vloerverwarming. Het pand is keurig afgewerkt en voorzien van alarminstallatie met camera’s, diverse toiletten, kantine met keukenblok, epoxy grindvloeren, systeemplafonds, inbouw-armaturen, verplaatsbare wanden, etc. Bestemmingsplan: Bedrijven t/m categorie 3.2 zijn toegestaan.
Voorzieningen
- Verwarming – Verlichting – Camerabewaking
- Internet en elektra – Kantoren met zonwering – Parkeergelegenheid
Duurzaamheid: Het pand wordt verwarmt en gekoeld d.m.v. aardwarmte installatie met boilervat. Naast de sedum afwerklaag zijn er (36) PV panelen aanwezig. Luchtbehandeling d.m.v. hybride ventilatiesysteem met warmteterugwinning en CO2- controle per ruimte. Gebouwbeheersysteem met lichtafhankelijke regelingen en klimaatcontrole. Geen gas-aansluiting. Zonneboiler. EPC<0,4. Flexibel installatieconcept. Grijs- regenwater opvang- spoelsysteem. Energielabel A.
Oppervlakte en indeling (BVO)
Totale oppervlakte: 900 m² (Bruto Vloer Oppervlakte), verdeeld in:
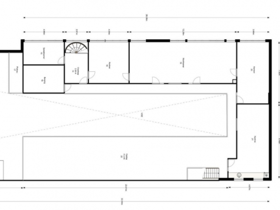
Indeling: Hal/ entree, toiletgroep (27 m2) met trapopgang naar de verdieping.
Verdieping: Representatieve moderne lichte kantoorruimtes met kantine (ca 219 m2)
- Entree en toiletten: 27 m²
- Kantoren, archief en kantine (verdieping): 217 m²
- Magazijn (verdieping): 143 m²
- Werkplaats: 470 m²
- Nachtkluis: 10 m²
- Wasruimten, toiletten, douche: 26 m²
Inlichtingen: telefoon 033 277 2020 | e-mail: info@3925.nl
3925 | Scherpenzeel: Industrielaan 15C
Indelingstekeningen







3925 | Scherpenzeel: Industrielaan 15C



